

Elektro-Deichselstapler GX 12 aus Edelstahl V2A – kompakt, leistungsstark, hygienisch
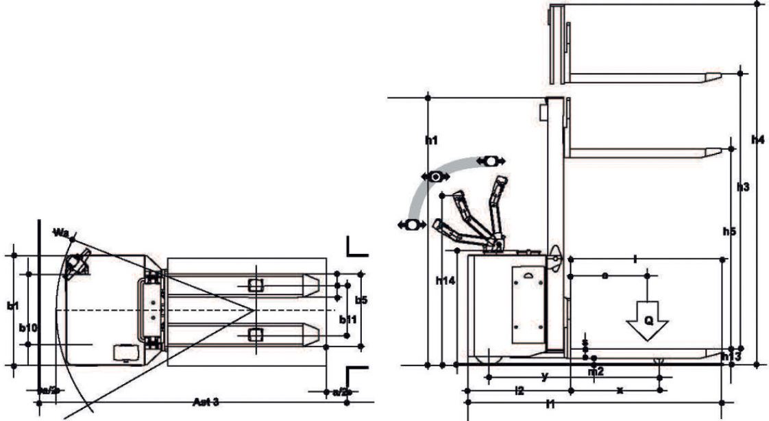
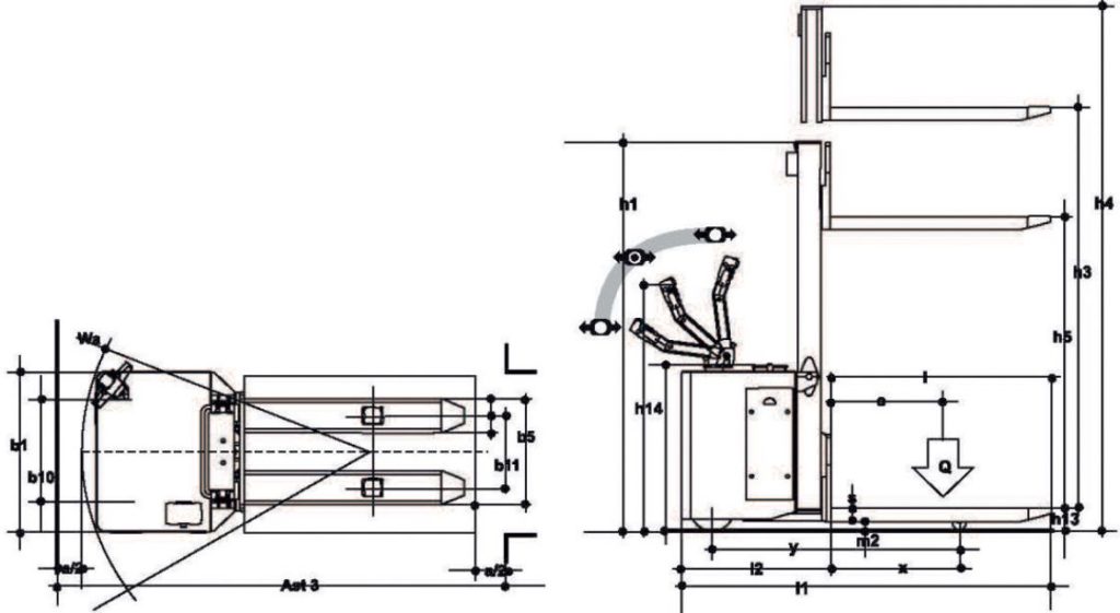
Der Elektro-Deichselstapler GX 12 aus Edelstahl V2A / AISI 304 vereint hohe Wendigkeit, kompakte Bauweise und komfortables Handling – ideal für den Einsatz auf kurzen Transportwegen und bei Hubhöhen bis 4.650 mm. Durch seine schmale Konstruktion eignet sich der GX 12 perfekt für Arbeitsgänge ab 2.250 mm und beengte Platzverhältnisse.
Für maximale Sicherheit und Stabilität beim Ein- und Auslagern sorgt die Vier-Punkt-Auflage, die auch bei anspruchsvollen Anwendungen einen sicheren Stand gewährleistet. Der GX 12 ist speziell für den Einsatz in der Lebensmittel-, Chemie- und Pharmaindustrie sowie in feuchten oder aggressiven Umgebungen konzipiert. Optional ist er auch in Edelstahl AISI 316 (V4A) erhältlich – ideal bei der Anwendung von Säuren oder Salzlösungen.
Zertifiziert nach EN 1672-1 und EN 1672-2, erfüllt er sämtliche Hygiene- und Sicherheitsanforderungen der Industrie.
Technische Ausstattung im Überblick
• Komplett aus Edelstahl V2A (AISI 304) – optional in V4A (AISI 316)
•Hubhöhe bis 4.650 mm, ideal für hohe Regale und Lagereinheiten
•Geeignet für schmale Gänge – Mindestarbeitsgangbreite nur 2.250 mm
•Vier-Punkt-Auflage für maximale Seitenstabilität beim Heben
• Ergonomische Deichsel mit IP65-Schutz, bedienbar auch mit Handschuhen
• Leiser, stromsparender Hubmotor
•AC-Fahrmotor mit elektronischer Steuerung
•Traktionsbatterie 24V / 180Ah mit externem Ladegerät (24V / 30A)
• Korrosionsgeschützte, transparente Abdeckung des Armaturenbretts
•3-farbige LED-Anzeige für Ladezustandsanzeige
• Elektrische Komponenten wasserdicht und korrosionsbeständig
•Hydrauliköl NSF-H1 – lebensmitteltauglich
• Rutschfestes Polyurethan-Antriebsrad
• Elektromagnetische Parkbremse, elektronisches Bremssystem, Drehzahlregelung
•Anti-Rollback-Funktion für sicheres Anfahren an Steigungen
• Kühlhausgeeignet bis -20 °C
Armaturenbrett
Die transparente, korrosionsbeständige Kunststoffabdeckung ist vollständig abwaschbar und optional auch in Edelstahlausführung erhältlich. Die integrierte 3-farbige LED-Anzeige informiert zuverlässig über den aktuellen Ladezustand.
Deichsel
Die ergonomische Multifunktions-Deichsel mit benutzerfreundlichen Bedienelementen und Schutzart IP65 sorgt für eine sichere und effiziente Bedienung. Beim Loslassen kehrt sie automatisch in die Neutralstellung zurück, wobei ein integrierter Endschalter das Gerät kontrolliert abbremst.
Seitlicher Batteriewechsel
Der GX 12 ist mit einer 24V 180Ah Batterie mit Gasumwälzung ausgestattet und lässt sich über ein externes Ladegerät komfortabel durch einfaches Anschließen des Batteriesteckers laden. Für intensive oder längere Einsätze sind optional Batterien mit einer Kapazität von bis zu 250Ah verfügbar. Die seitliche Batterieentnahme mit Rollenlagerung ermöglicht einen schnellen Batteriewechsel und damit den Einsatz im Mehrschichtbetrieb. Optional ist ein Batteriewechselwagen mit einer oder zwei Tragrollenbahnen erhältlich.
- Tandem-Lastrollen für ruhigeres Fahrverhalten
- Edelstahlabdeckung für Anzeigen – hygienisch und korrosionsbeständig
- Vollfreihub für Duplex-Hubgerüst – ideal für niedrige Durchfahrtshöhen
- Abweichende Hubhöhen auf Anfrage realisierbar
- Ausführung in Edelstahl V4A (AISI 316) für aggressive Umgebungen
- Rutschfestes Polyurethan-Antriebsrad mit aufgerauter Oberfläche
- Voltmeter-Stundenzähler mit Hubabschaltung bei 80 % Entladung